용산 호반써밋 에이디션. 한강과 용산공원 사이 다시없을 한정판 호반써밋. 교통도 생활도 힐링도 원스톱으로 누리는 용산의 중심에 프리미엄 주거복합단지를 선보입니다[호반건설].
용산 호반써밋 에이디션 소개
아파트와 오피스텔 및 오피스가 함께 구성되는 복합단지로 만들어집니다. 높은 분양가에도 불구하고 이미 특별공급에서 높은 청약 경쟁률이 나왔습니다.
특별 공급 25세대에 청약자수는 2,251로 평균 경쟁률은 90대 1입니다. 1순위에서도 상당한 경쟁률로 마감이 될 것으로 예상됩니다. 분양가 상한제를 적용받기에 기본 수억 원의 차익이 예상됩니다.
(청약 접수 및 자격 확인)
[단지 개요]
단지명: 국제빌딩주변 제5구역 도시정비형 재개발사업
주소: 서울특별시 용산구 한강로2가 210-1번지 일대
용적률: 891.12%
건폐율: 43.28%
아파트 110세대 중 일반분양 90세대
오피스텔 77실 중 일반분양 49실
오피스 51실 중 일반분양 22실
입주 예정: 2025년 3월 예정
[입지]
신용산역 4호선, 용산역 1호선, 경의중앙선과 GTX-B노선, 한강대로, 강변북로, 올림픽대로 등 교통의 중심지입니다.

용산의 비전과 다양한 생활 인프라, 그리고 용산공원의 힐링을 함께 누릴 수 있습니다.


[분양가]
84 타입의 경우 대략 15억원대, 105 타입의 경우 20억, 122 타입의 경우 25억 정도입니다. 층별로 가격이 다르니 상세가격은 입주자 모집공고를 참고하시기 바랍니다.
| 타입 | 공급금액(최고가 기준) |
| 84A | 163,120만원 |
| 84B | 163,390만원 |
| 105A | 204,280만원 |
| 105B | 207,070만원 |
| 122 | 252,990만원 |
[현장 위치]
서울특별시 용산구 한강로 2가 210-1번지 일대
[홍보관]
서울 서초구 양재대로2길 18 호반 파크 2관 1층
아파트 분양 안내
[청약일정]
7월 24일 특별 공급을 시작으로 1순위 7월 25일, 2순위 7월 26일 진행됩니다.


[청약 자격]
단지가 위치한 용산은 투기과열지구입니다. 1순위 청약 조건을 잘 확인하신 후 청약하시기 바랍니다.



단지 정보
[단지 정보]
홈페이지: 용산 호반써밋 에이디션 홈페이지
입주자 모집공고: 입주자모집공고 홈페이지
FAQ: 주택청약 FAQ. 국토교통부 제공
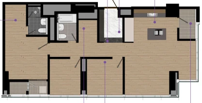
[평면도]





[자료]
(일정, 청약 안내)
(입지, 단지 배치도, 평면도)
[E-모델하우스]
[함께 읽으면 좋은 글]
구의역 롯데캐슬 이스트폴 분양 정보 청약 안내
롯데캐슬 이스트폴. 광진의 랜드마크. 한강프리미엄의 완결판. 한강과 강남을 바로 누리는 초역세권 초고층 초프리미엄 주거명작! 구의역 롯데캐슬 이스트폴로 초대합니다[롯데캐슬] 구의역 롯
meetallse.dpstory.com
예금 금리 비교, 저축은행 예금, 예금 이자 계산기
예금이란 일정 기간을 정해놓고 자신의 돈을 은행에 맡기는 상품입니다. 이번 글에서는 예금과 적금의 차이를 살펴보고 은행별 예금 금리 비교 및 이자 계산까지 안내드립니다. 시중 은행 예금
meetallse.dpstory.com
아파트 청약 일정 7월 넷째 주(+청약홈, 가점계산기)
아파트 청약 일정 7월 넷째 주(+청약홈, 가점계산기)
7월 넷째 주 청약 일정 안내드립니다. 미리미리 청약 통장 준비 및 가점 계산해 보시고 원하시는 아파트 반드시 당첨받으시기 바랍니다. 청약 안내 모집공고문 업데이트에 따라 추후 청약 일정
meetallse.dpstory.com
'라이프' 카테고리의 다른 글
| 주민등록증 재발급 인터넷 신청, 기간 비용 사진 안내 (0) | 2023.07.27 |
|---|---|
| 모바일 신분증, 정부24 주민등록증 모바일 확인서비스 이용 방법 (0) | 2023.07.26 |
| 구의역 롯데캐슬 이스트폴 분양 정보 청약 안내 (0) | 2023.07.24 |
| 스타벅스 현금영수증 간편하게 자동발급하기 (0) | 2023.07.24 |
| 예금 금리 비교, 저축은행 예금, 예금 이자 계산기 (0) | 2023.07.23 |
댓글